안녕하세요! 원룸에 혼자 사시는 분들은 아실 거예요 너무 좁은 집에 뭘 아무래도 답답하고 수납공간도 부족하고..그래서 인테리어를 하려고 해도 막연한 건 사실… 그런 고객님들을 위해서 이번에 준비한 건 바로 넓어 보이는 원룸 인테리어 도면이에요!
![]()
안녕하세요! 원룸에 혼자 사시는 분들은 아실 거예요 너무 좁은 집에 뭘 아무래도 답답하고 수납공간도 부족하고..그래서 인테리어를 하려고 해도 막연한 건 사실… 그런 고객님들을 위해서 이번에 준비한 건 바로 넓어 보이는 원룸 인테리어 도면이에요!
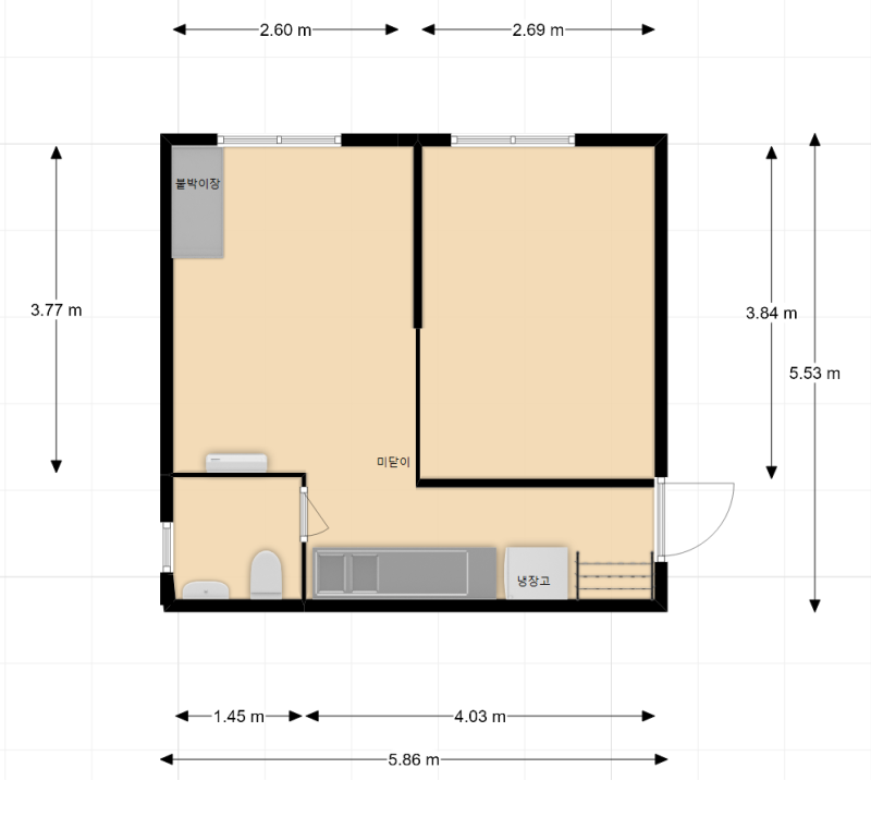
원룸이라는 한정된 공간 안에서 취미생활도 즐겨야 하고, 편안하게 지내야 하고, TV 시청도 잊어서는 안 되잖아요!그러면 원룸이라는 정해진 규모 안에서 어떻게 공간 배치를 해야 하는지.. 저희 원룸 인테리어 도면을 한번 살펴볼까요!

가벽을 이용하여 원룸 안 공간을 분리합니다.가벽이라고 해서 답답한 느낌이 아니라 생활공간과 휴식공간을 나누어 보다 쾌적한 생활을 할 수 있도록 하는 것입니다.바퀴 안에 사는 생활 속에서 휴식 공간이 마련되어야 하는 것은 무엇보다 중요해요!
디자인은 두가지 방법으로 의뢰 가능합니다!1) 원하는 디자인을 전문 디자이너의 도움을 받아 도면화하는 방법 2) 전문 디자인 업체로부터 도면 디자인을 제안받는 방법입니다.처음 의뢰시 원하시는 방법을 선택해주시면 제작 도면의 종류에 따라 설계기간, 비용이 달라질 수 있습니다.

정확한 원룸 인테리어 도면 제작 기간은 보내주신 자료를 통해 작업량, 제작 범위 등을 고려하여 안내해 드리겠습니다.
패키지 서비스를 이용한 원룸 인테리어 도면을 모두 의뢰할 수도 있지만 평면도나 입면도, 투시도 등 개별적으로 의뢰할 수도 있습니다.평면도의 경우 짧은 기간과 저렴한 가격으로 의뢰가 가능하며 많은 시공사 사장님들이 의뢰하고 있습니다.

제가 원하는 디자인을 실체화할 수 있는 기회, 실제 공사가 가능한 인테리어로 설계하겠습니다.전문 디자이너의 손을 원하시면 지금 바로 연락주세요.
인테리어 시공과는 다른 디자인 설계의 경우는 온라인에서 충분히 의사 소통을 하며 자료 교환을 하니 거리, 위치, 시간에 관계 없이 도면 제작이 가능합니다~희망의 도면 디자인, 색상, 마감재를 이용으로 꾸미고자 할 경우 다양한 경험과 노하우를 갖춘 디자인 설계 전문 그룹과 함께 오세요!!Loading… player_likesound_mutesound_mutesound_volume2sound_volume3[x]Player Size:0 x 0Current Resolution:0PMax Abr Resolution:0PProtocol:hlsCurrent Bandwidth:Average Bandwidth:Buffer Health:Frame Drop Rate:0/0 도움말라 이 감각 Video Statistic Version 4.29.4(HLS)Build Date(2022/8/31)NAVER Corp. 동영상 인코딩 중입니다.5분 이상 걸리는 경우가 있고, 영상의 길이에 의해서 소요 시간은 다릅니다. 원룸 인테리어 도면 조회수 30topleftrightbottom마우스를 드래그 하세요.360°Video도움말 MULTI TRACK다중 트랙의 트랙별 영상은 오른쪽의 관련 영상으로 볼 수 있습니다.선거 광고 안내 뮤트 00:00| 00:40화질 선택 옵션 자동 144p270p480p720pHD1080pHD화질 전 화면 00:0000:800:2400:32광고 정보를 더 보초 후, SKIP초 후 재생 SKIP광고 후에 이어집니다.SNS공유 소스 코드 Band Twitter Facebook Blog CafeURL주소 카피 HTML소스 544x306740x416936x5261280x720카피 Flash음성 지원으로 Object코드를 확산시키는 기능은 더 이상 지원되지 않습니다.도움말 플레이어 URL복사 레이어 감는다/ 열원룸 인테리어 도면#원룸 인테리어 도면, 단순히 가격만 선택하는 것이 아니라 디자인의 품질과 신뢰성을 고려해야 합니다.카카오 톡의 실시간 상담은 이쪽 이하의 화상을 클릭하세요.인테리어 시공과는 다른 디자인 설계의 경우는 온라인에서 충분히 의사 소통을 하며 자료 교환을 하니 거리, 위치, 시간에 관계 없이 도면 제작이 가능합니다~희망의 도면 디자인, 색상, 마감재를 이용으로 꾸미고자 할 경우 다양한 경험과 노하우를 갖춘 디자인 설계 전문 그룹과 함께 오세요!!Loading… player_likesound_mutesound_mutesound_volume2sound_volume3[x]Player Size:0 x 0Current Resolution:0PMax Abr Resolution:0PProtocol:hlsCurrent Bandwidth:Average Bandwidth:Buffer Health:Frame Drop Rate:0/0 도배말라이센스 Video Statistic Version 4.29.4 (HLS) BuildDate (2022/8/31) 네이버 코퍼 동영상 인코딩중입니다.5분 이상 소요될 수 있으며 영상 길이에 따라 소요 시간은 다릅니다. 원룸 인테리어 도면 재생수 30tople ftright bottom 마우스를 드래그 하세요.360° Video 도움말 MULTI TRACK 멀티트랙 트랙별 영상은 우측 관련 영상에서 볼 수 있습니다.선거광고안내뮤트00:00|00:40화질선택옵션자동144p270p480p720pHD1080pHD화질전체화면00:800:2400:32광고정보더보기초후SKIP초후재생SKIP광고후이어집니다.SNS 공유 소스 코드 Band Twitter Facebook Blog Cafe URL 주소 복사 HTML 소스 544x306740x416936x5261280x720 복사 Flash 미지원으로 Object 코드를 확산시키는 기능은 더 이상 지원되지 않습니다.도움말 플레이어 URL 복사 레이어 닫기/열리는 원룸 인테리어 도면 #원룸 인테리어 도면, 단순히 가격만으로 선택할 것이 아니라 디자인의 퀄리티와 신뢰성을 고려해야 합니다.카톡 실시간 상담은 여기! 아래 이미지를 클릭해주세요.#원룸인테리어도면 #원룸도면 #원룸인테리어 #도면제작 #도면작성 #도면의뢰 #도면설계 #도면외주